 |
Соответствие стандартам:
Дизельные электростанции премиум-класса Cummins C220D5 (Великобритания) сертифицированы, и соответствуют ГОСТ 10150-88 и др. |
Основные технические характеристики Cummins C220D5: |
| Наименование параметра |
Значение |
| Номинальная мощность (PRIME), кВт/кВА |
160/200 |
| Максимальная мощность (STANDBY), кВт/кВА |
176/220 |
| Род тока |
переменный трехфазный |
| Номинальное напряжение, В |
400 |
| Номинальная частота, Гц |
50 |
| Номинальный коэффициент мощности |
0,8 |
| Номинальный ток, А |
288 |
| Двигатель |
Cummins 6CTAA8.3G1 |
| Генератор |
Newage Stamford UCI274H |
| Количество цилиндров |
6 в ряд |
| Степень сжатия |
16,8:1 |
| Рабочий объем двигателя |
8,3 л. |
| Стабильность напряжения |
± 1% |
| Частота вращения вала двигателя, мин-1 |
1500 |
| Заправочные емкости, л: |
|
| Система топливопитания |
350 |
| Система охлаждения (радиатор и двигатель) |
24,3 |
| Система смазки |
23,8 |
| Расход топлива при 100 % нагрузки, л |
45 |
| Расход топлива при 110 % нагрузки, л |
50 |
| Минимальная температура запуска без подогрева, 0С |
-12 |
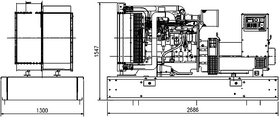
| Габаритные размеры, мм длина x ширина x высота |
2686 х 1300 х 1547 |
| Масса сухого электроагрегата, кг |
1840 |
| Ресурс до капитального ремонта, м.ч. |
н.д. |
Режим номинальной мощности (PRIME)
Неограниченное время годовой наработки при работе на переменную нагрузку в соответствии с ISO 8528.
10%-перегрузка допускается в течение 1-го часа на 12 часов работы в соответствии с ISO 3046.
Режим максимальной мощности (STANDBY)
Указывается мощность для условий резервного электроснабжения при работе на переменную нагрузку.
Перегрузка не допускается. Годовое время наработки не более 200 часов. |
Стандартная комплектация Cummins C220D5:
- дизельный двигатель Cummins 6CTAA8.3G1 со стартером;
- синхронный силовой генератор Newage Stamford UCI274H мощностью 160 кВт;
- базовая стальная рама;
- система впуска с воздушным фильтром;
- без системы газовыхлопа;
- система топливопитания со встроенными топливным баком емкостью 350 л. и топливным фильтром с сепаратором воды;
- система охлаждения с водяным радиатором и крыльчаткой вентилятора обратного тока с защитой;
- подогреватель охлаждающей жидкости от сети 220 В;
- система смазки с масляным радиатором и масляным фильтром;
- система электрооборудования с зарядным генератором 12В с аккумуляторными батареями и комплектом проводов;
- комплект ЗИП;
- охлаждающая жидкость - антифриз;
- комплект эксплуатационной документации;
1-ая степень автоматизации:
- система управления первой степени автоматизации на базе микропроцессорного контроллера;
2-ая степень автоматизации (резервирование сети):
- панель переключения нагрузки серии GTEC (система автоматического запуска);
3-ая степень автоматизации:
- система автоматической дозаправки маслом и топливом (комплектность согласовывается с заказчиком).
|
| Основные комплектующие Cummins C220D5 |
Двигатель:
Первичный двигатель Cummins 6CTAA8.3G1: дизель, 4-тактный, 6-цилиндровый с рядным расположением цилиндров, с непосредственным впрыском топлива и жидкостным охлаждением, с турбонаддувом и охлаждением наддувочного воздуха, электронный регулятор частоты вращения. |
Силовой генератор:
Генератор синхронный Newage Stamford UCI274H производства Cummins Generator Technologies; |
Системы управления:
Ручное управление: Дизель-генераторы 1-ой степени автоматизации в соответствии с ГОСТ Р ИСО 8528-1, не предназначенные для автоматической работы комплектуются ручными пультами управления:
- модели PowerCommand PCC 1301; |
Автоматическое управление: Дизель-генераторы 2-ой степени автоматизации в соответствии с ГОСТ Р ИСО 8528-1, предназначенные для автоматической работы дополнительно комплектуются панелью переключения нагрузки серии GTEC; |
| Дополнительное оборудование для Cummins C220D5 |
|
| Специальные варианты исполнения для Cummins C220D5: |
|
| Услуги сервисного обслуживания |
|
Гарантии изготовителя:
Гарантийный срок эксплуатации – 18 месяцев с момента отгрузки или 12 месяцев с момента ввода в эксплуатацию в зависимости оттого, что наступит раньше. |
| |
|
|
Если Вам необходимы не базовые исполнения продукции, просим Вас заполнить опросный лист на заказываемый вид продукции: |
Скачать опросный лист дизельные электростанции |
Заполненный вами опросный лист будет передан квалифицированным специалистам конструкторской службы и отдела продаж для детальной проработки. После этого в Ваш адрес будет направлено технико-коммерческое предложение. |
Условное обозначение:
В связи с тем, что в настоящее время не существует обязательных ГОСТов регламентирующих наименование электростанций, в заявках потребителей и Ваших заказчиков могут присутствовать разнообразные наименования необходимой вам электростанции: АД160 (АД-160), АД-160С, ЭД160 (ЭД-160), ДЭС-160, ДУЭ-160, АСДА-160, ДГ-160, ДГА-160, ДГУ-160 (ДГУ160) или ПЭС-160.
Вместо любой из них Вы можете выбрать дизельную электростанцию Cummins C220D5. |
см. также
Дизельная электростанция Cummins C55D5 (40 кВт);
Дизельная электростанция Cummins C70D5 (50 кВт);
Дизельная электростанция Cummins C80D5 (58 кВт);
Дизельная электростанция Cummins С110D5 (80 кВт);
Дизельная электростанция Cummins C150D5 (109 кВт);
Дизельная электростанция Cummins С180D5 (131 кВт);
Дизельная электростанция Cummins С200D5 (146 кВт);
Дизельная электростанция Cummins С250D5 (183 кВт);
Дизельная электростанция Cummins С275D5 (200 кВт);
|