Дизельная электростанция 75 кВт, АД-75, АД75, ЭД-75, ДГУ-75, ДЭС-75, электростанции, дизель-генераторы, дизельный генератор, ММЗ, ЯМЗ, ТМЗ, Volvo
Выполненные проекты
Фотогалерея производства
Склад генераторов
Главная » Каталог оборудования » Электростанции » Дизельные генераторы от 30 до 3000 кВт »
Дизельные электростанции серии АД » АД-75 |
Дизельная электростанция АД75 (АД-75)
мощностью 75 кВт 50 Гц (основная мощность) |
 |
Дизельные электростанции серии АД75 (АД-75) предназна-чены для получения трехфазного электрического тока на-пряжением 400 В.
В качестве основных источников электроснабжения электростанции ДГУ-75 применяются для автономных объектов (удалённые населённые пункты, фермерские хозяйства, вахтовые посёлки, буровые установки и т.п.). На дизельэлектростанции установлена система управления электро генератором предназначенная для запуска дизельного электрогенератора вручную. Дизельный агрегат с ручным запуском должен работать в постоянном присутствии оператора ДГУ.
В качестве резервных источников электроснабжения дизель-электростанции могут применяться на объектах, требующих повышенной надёжности энергообеспечения (школы, учреждения здравоохранения, банки, гостиницы, спортивные сооружения и т.п.). Автоматизированные установки ДГУ оборудованы автоматикой, запускающей генераторные установки при пропадании основного питания. Дизель генераторные установки оборудованные по 2-й степени автоматизации могут работать без присутствия оператора. |
|
 |
Соответствие стандартам:
Дизельные электростанции серии АД сертифицированы. Климатическое исполнение – УХЛ.
Шкафы управления ШУДГ сертифицированы, и соответствуют ГОСТ Р 51321.1-2000. |
Основные технические характеристики: |
| Наименование параметра |
Значение |
| Номинальная мощность (длительная), кВт/кВА |
75/94 |
| Максимальная часовая мощность, кВт/кВА |
82,5/103 |
| Род тока |
переменный трехфазный |
| Номинальное напряжение, В |
400 |
| Номинальная частота, Гц |
50 |
| Номинальный коэффициент мощности |
0,8 |
| Номинальный ток, А |
135 |
| Частота вращения вала двигателя, мин-1 |
1500 |
| Заправочные емкости, л: |
|
| Система топливопитания |
150 |
| Система охлаждения (радиатор и двигатель) |
24 |
| Система смазки |
18 |
| Расход топлива при 100 % нагрузки, л |
16,3 |
| Удельный расход масла, % от расхода топлива |
0,9 |
| Минимальная температура запуска без подогрева, 0С |
-10 |
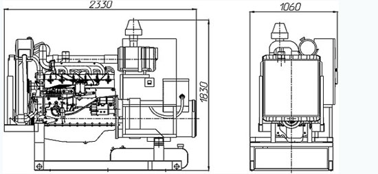
| Габаритные размеры, мм длина x ширина x высота |
2330 x 1060 x 1830 |
| Масса сухого электроагрегата, кг |
1 680 |
| Ресурс до капитального ремонта, м.ч. |
8 000 |
Стандартная комплектация:
- дизельный двигатель ММЗ Д-266.4 со стартером;
- синхронный силовой генератор 363CSL1607 мощностью 104 кВт (либо аналог);
- базовая рама;
- система впуска с воздушным фильтром;
- система газовыхлопа с глушителем;
- система топливопитания со встроенными топливным баком емкостью 150 л. с топливными фильтрами ;
- система охлаждения с водяным радиатором и крыльчаткой вентилятора обратного тока с защитой;
- система смазки с масляным радиатором, масляным фильтром и шестеренчатым масляным насосом;
- система электрооборудования с зарядным генератором;
- устройство останова двигателя на базе соленоида;
- устройство подрегулировки ТНВД;
- комплект ЗИП;
- комплект эксплуатационной документации;
1-ая степень автоматизации:
- система управления первой степени автоматизации;
2-ая степень автоматизации (резервирование сети):
- система управления второй степени автоматизации на базе микропроцессорного контроллера с функцией резервирования сети;
- зарядное устройство для автоматической подзарядки аккумуляторных батарей от сети 220 В;
- электрический подогреватель охлаждающей жидкости от сети 220 В;
3-ая степень автоматизации:
- система дозаправки масла и топлива (комплектность согласовывается с заказчиком).
|
| Основные комплектующие |
Двигатель:
Первичный двигатель ММЗ Д-266.4: дизель, 4-тактный, 6-цилиндровый с рядным расположением цилиндров, с непосредственным впрыском топлива и жидкостным охлаждением, с наддувом, механический регулятор частоты вращения, электромагнит на останов. |
Силовой генератор:
Генератор синхронный 363CSL1607 производства Marathon Electric; |
Системы управления:
Ручное управление: Дизель-генераторы 1-ой степени автоматизации в соответствии с ГОСТ Р ИСО 8528-1, не предназначенные для автоматической работы комплектуются ручными пультами управления:
- модели ШУДГ-1-75 на базе контроллера GС-1F или на контроллере NT MRS-16 фирмы "ComAp"; |
Автоматическое управление: Дизель-генераторы 2-ой степени автоматизации в соответствии с ГОСТ Р ИСО 8528-1, предназначенные для автоматической работы комплектуются автоматическими пультами управления:
- модели ШУДГ-2-75 на базе контроллера GС-1F AMF или на контроллере NT AMF-25 фирмы "ComAp"; |
| Дополнительное оборудование |
|
| Специальные варианты исполнения: |
|
| Услуги сервисного обслуживания |
|
Гарантии изготовителя:
Гарантийный срок эксплуатации – 18 месяцев с момента отгрузки или 12 месяцев с момента ввода в эксплуатацию в зависимости оттого, что наступит раньше. |
|
|
|
| Если Вам необходимы не базовые исполнения продукции, просим Вас заполнить опросный лист на заказываемый вид продукции: |
Скачать опросный лист дизельные электростанции |
| Заполненный вами опросный лист будет передан квалифицированным специалистам конструкторской службы и отдела продаж для детальной проработки. После этого в Ваш адрес будет направлено технико-коммерческое предложение. |
Условное обозначение:
В связи с тем, что в настоящее время не существует обязательных ГОСТов регламентирующих наименование электростанций, в заявках потребителей и Ваших заказчиков могут присутствовать разнообразные наименования необходимой вам электростанции: АД75 (АД-75), АД-75С, ЭД75 (ЭД-75), ДЭС-75, ДУЭ-75, АСДА-75, ДГ-75, ДГА-75, ДГУ-75 (ДГУ75) или ПЭС-75.
Вместо любой из них Вы можете выбрать нашу дизельную электростанцию АД75. |
см. также
Дизельная электростанция АД40 (АД-40, 40 кВт);
Дизельная электростанция АД50 (АД-50, 50 кВт);
Дизельная электростанция АД60 (АД-60, 60 кВт с двигателем ММЗ);
Дизельная электростанция АД75 (АД-75, 75 кВт с двигателем ЯМЗ);
Дизельная электростанция АД100 (АД-100, 100 кВт с двигателем ММЗ);
Дизельная электростанция АД100 (АД-100, 100 кВт с двигателем ЯМЗ);
Дизельная электростанция АД120 (АД-120, 120 кВт с двигателем ЯМЗ);
Дизельная электростанция АД150 (АД-150, 150 кВт с двигателем ЯМЗ);
Дизельная электростанция АД160 (АД-160, 160 кВт с двигателем ЯМЗ);
Дизельная электростанция АД200 (АД-200, 200 кВт с двигателем ЯМЗ); |
|
|